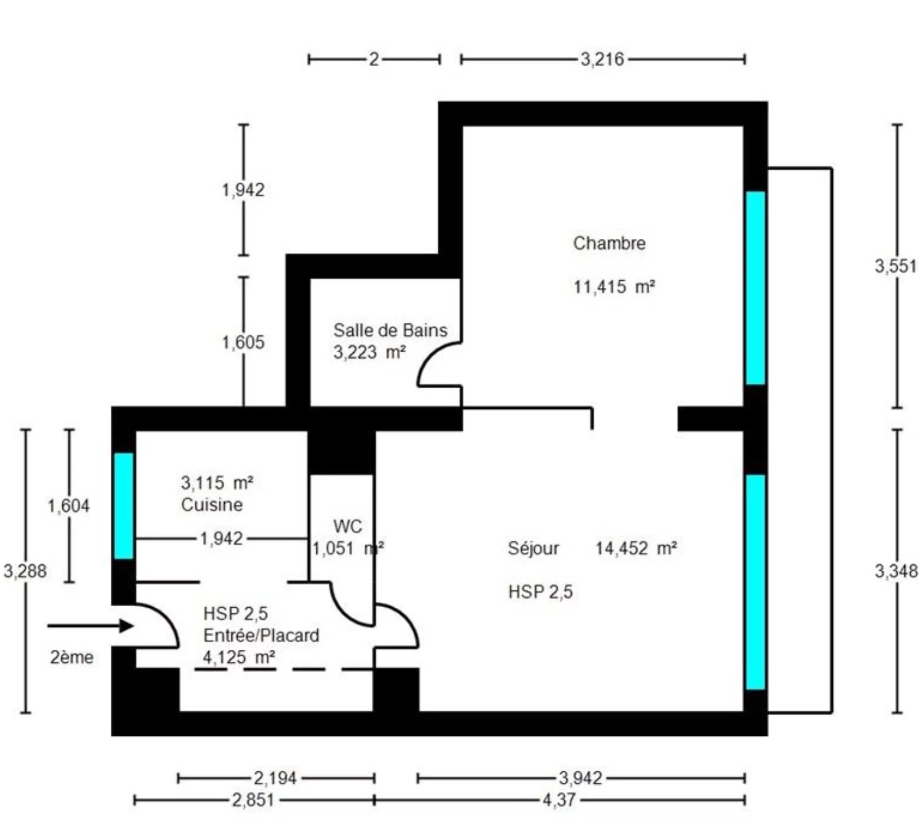
EXCLUSIVITÉ – PARIS 16e – AUTEUIL / JASMIN – 2 PIÈCES RÉNOVÉ PAR ARCHITECTE SUR JARDIN First Immobilier vous présente en exclusivité ce magnifique appartement de 50 m², niché au calme absolu, en retrait de l’animation du Village d’Auteuil, dans un immeuble récent de bon standing avec ascenseur et gardien. Entièrement repensé et rénové par un architecte avec des matériaux de qualité, ce bien se distingue par son élégance et sa fonctionnalité. Il s’ouvre sur une entrée desservant une vaste pièce de vie de 32 m², baignée de lumière, composée d’un double séjour et d’une cuisine ouverte sur-mesure, parfaitement intégrée. La partie nuit propose une suite parentale au calme sur jardin, avec salle d’eau et toilettes attenantes. Le plan en étoile, sans aucune perte de place, assure une circulation fluide et met en valeur les volumes. L’appartement bénéficie d’une vue dégagée sur un jardin arboré, offrant une atmosphère paisible et privilégiée, rare au cœur du 16e arrondissement. À proximité immédiate des commerces, des écoles réputées et des transports (métros Jasmin et Michel-Ange Auteuil), ce bien clé en main est idéal comme résidence principale, pied-à-terre ou investissement patrimonial. Photo meublée générée par IA non contractuelle














































